53119
Bonn / Tannenbusch
Bonn: Projektierte Bürofläche mit positivem Bauvorbescheid – sofort entwickelbar
2.500.000 €
0
0
0
Eine exklusive Investmentgelegenheit erwartet Sie mit diesem Gewerbegrundstück, das eine solide Basis für strategisch orientierte Immobilieninvestoren bietet.
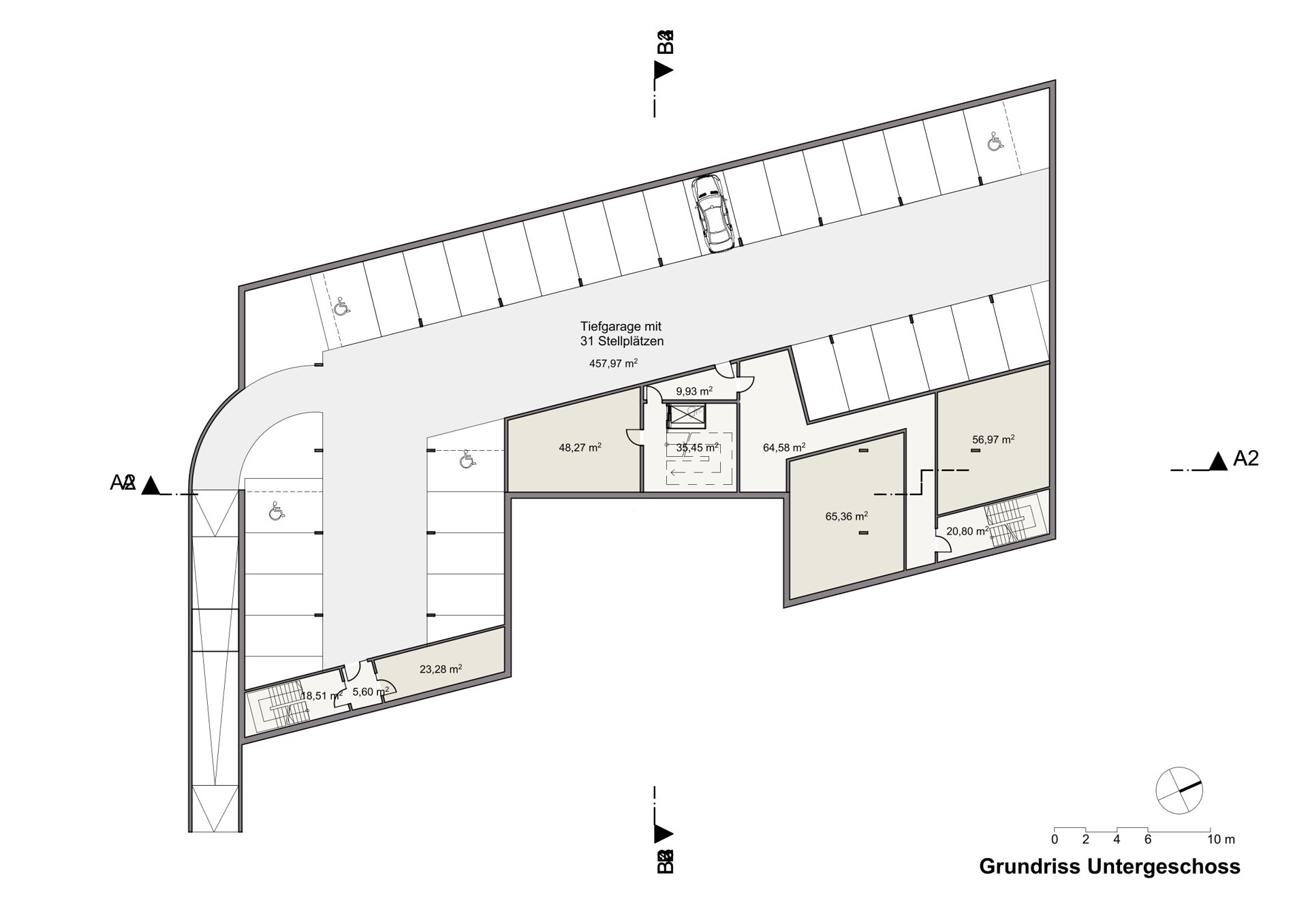
In Bonn / Tannenbusch bietet sich für Bauträger und Projektentwickler eine seltene Gelegenheit: Ein großzügiges Gewerbegrundstück mit ca. 4.447 m² Fläche, das bereits die Grundlage für ein exklusives Bauprojekt im modernen Baustil schafft. Die genehmigte Bauvoranfrage ermöglicht die Realisierung eines Bürogebäudes mit einer geplanten Nutzfläche von ca. 3.698 m² und bietet damit eine hervorragende Perspektive für eine zukunftsorientierte, gewerbliche Entwicklung.
Das Projektkonzept überzeugt durch klare, zeitgemäße Architektur und eine effiziente Flächennutzung. Ein besonderes Plus stellt die geplante Tiefgarage mit 30 Stellplätzen dar – ein entscheidender Standortvorteil für Nutzer und Mieter, insbesondere im urbanen Umfeld und im Hinblick auf die komfortable Erschließung.
Die Lage in Bonn / Tannenbusch verbindet eine gute infrastrukturelle Anbindung mit einem etablierten Umfeld und bietet damit beste Voraussetzungen für eine nachhaltige Vermarktung als moderner Bürostandort. Dieses Grundstück eignet sich ideal für Investoren, die ein genehmigungsnahes Projekt mit attraktiven Rahmenbedingungen zügig weiterentwickeln möchten.
Die vielfältigen Nutzungsmöglichkeiten bieten Ihnen die Freiheit, Ihr Portfolio gezielt zu erweitern und auf aktuelle Markterfordernisse zu reagieren. Besonders erwähnenswert ist die strategische Vermietbarkeit des Grundstücks, die Ihnen nachhaltige Einnahmenpotenziale und eine hohe Flexibilität in der künftigen Nutzung ermöglicht. Die diskrete Abwicklung garantiert Ihnen höchste Vertraulichkeit bei allen Transaktionsdetails.
Vereinbaren Sie noch heute einen persönlichen Gesprächstermin mit Ihrem Immobilienexperten von Immobilien Kittlaus und entdecken Sie die vielfältigen Möglichkeiten dieses exklusiven Grundstücks.
– Flexible Nutzungsmöglichkeiten
– Möglichkeit zur Schaffung von zusätzlichen Büroeinheiten, sowie Parkplatzoptionen.
– Strategische Investitionsbasis ohne Einschränkungen durch bestehende Verträge.
– Langfristige Wertsteigerung durch strategisch günstige Anschaffungsbedingungen.
Die Lage im Stadtteil Tannenbusch in Bonn, etwa 5 km nordöstlich der Innenstadt, zeichnet sich durch ihre gute Erreichbarkeit und solide Infrastruktur aus. Das Viertel verbindet eine ruhige, wohnorientierte Umgebung mit schnellen Anbindungen an die Innenstadt sowie an die umliegenden Regionen, was die Vermietbarkeit der Immobilie positiv beeinflusst und eine stabile Kapitalanlage verspricht.
In unmittelbarer Nähe befinden sich zentrale Versorgungseinrichtungen. Die Anbindung an den öffentlichen Nahverkehr ist durch die nahegelegene Tram- und Bushaltestelle, rund 400 m entfernt, gewährleistet. Dadurch besteht eine direkte Verbindung zu Bonn Hbf und der Innenstadt, was für Mieter mit beruflicher und akademischer Orientierung attraktiv ist. Für die Naherholung bieten sich die grünen Anlagen im Tannenbusch sowie größere Parks in der Umgebung an, die eine hohe Lebensqualität fördern.
Aufgrund der stabilen Nachfrage nach Büroflächen in Bonn sind Investitionen in entsprechenden Immobilien eine lohnende Perspektive. Anleger profitieren von einer sicheren Vermietbarkeit, da die Infrastruktur den Bedarf an Büroflächen in der Region stetig unterstützt. Das Viertel bietet somit attraktive Voraussetzungen für nachhaltige Investmententscheidungen und eine solide Wertentwicklung.
Teilen auf
Objektangaben
Objektnummer:823
Grundstücksfläche:4.450,00 m²
Kosten
Kaufpreis:2.500.000 €
Provision: 5,95%
Ausstattung
Erschliessung:Voll erschlossen
- A+
- A
- B
- C
- D
- E
- F
- G
- H
0255075100125150175200225250
0,00 kWh/(m²*a)
Ihre Anfrage
* Pflichtfelder
Ihr Ansprechpartner

Marc Lammerz
Tel.: 02241 – 99 52 60





















